Региональные филиалы компании Агромаш:
Ванна твороженная
Творожная ванна являются основным элементом линии производства творога традиционным способом. Обычно твороженые ванны используются совместно с ваннами самопресоования, пресс-тележками и прочим оборудованием для охлаждения и прессования готового творога.
Ванна твороженная
Ванна творожная применяется в молочной промышленности и предназначена для подогрева нормализованного молока до температуры внесения закваски, сквашивания молока в процессе образования, охлаждения творожного сгустка (калье).
Работа твороженной ванны
После заполнения ванны молоком и его заквашивания в рубашку подают горячую воду для нагрева молока и поддержания необходимой температуры сквашивания. По окончании процесса сквашивания горячую воду спускают и подают холодную для охлаждения сгустка. Через шиберный кран готовым сгустком наполняют мешки и укладывают рядами в ванну самопрессования на решетки.
|
 |
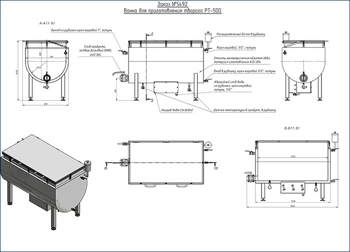
Устройство твороженой ванны:
Творожная ванна имеет рабочий корпус полуцилиндрической формы, теплообменную рубашку.
С левой стороны ванна имеет штуцер для выпуска творога с крышкой и штуцер для слива воды из теплообменной рубашки.
С правой стороны сверху находиться штуцер, предназначенный для перелива воды при заполнении теплообменной рубашки или при образовании конденсата в процессе нагревания. Также через этот штуцер происходит слив воды при охлаждении ванны: проточной - в канализацию ледяной - в канализацию или возврат в систему ледяной воды.
Ванна твороженная установлена на ножках, которые обеспечивают уклон ванны в сторону выпускного штуцера.
Снизу к ванне подведен коллектор для подачи пара или горячей воды в теплообменную рубашку при сквашивании молока и холодной или ледяной воды при охлаждения сгустка - калье.
В коллекторе предусмотрена система его очистки в случае загрязнения.
Ванна твороженная. Технические характеристики
 |
Рабочая вместимость, м3 0,25 1,2 2,5 50,0 10,0
Теплоноситель - горячая вода
Хладоноситель - хоз. питьевая вода
|
1. Ванна твороженная с площадкой обслуживания. 2. Ванна самопрессования. |
Схема устройства твороженной ванны
Рекомендуем пищевое оборудование: